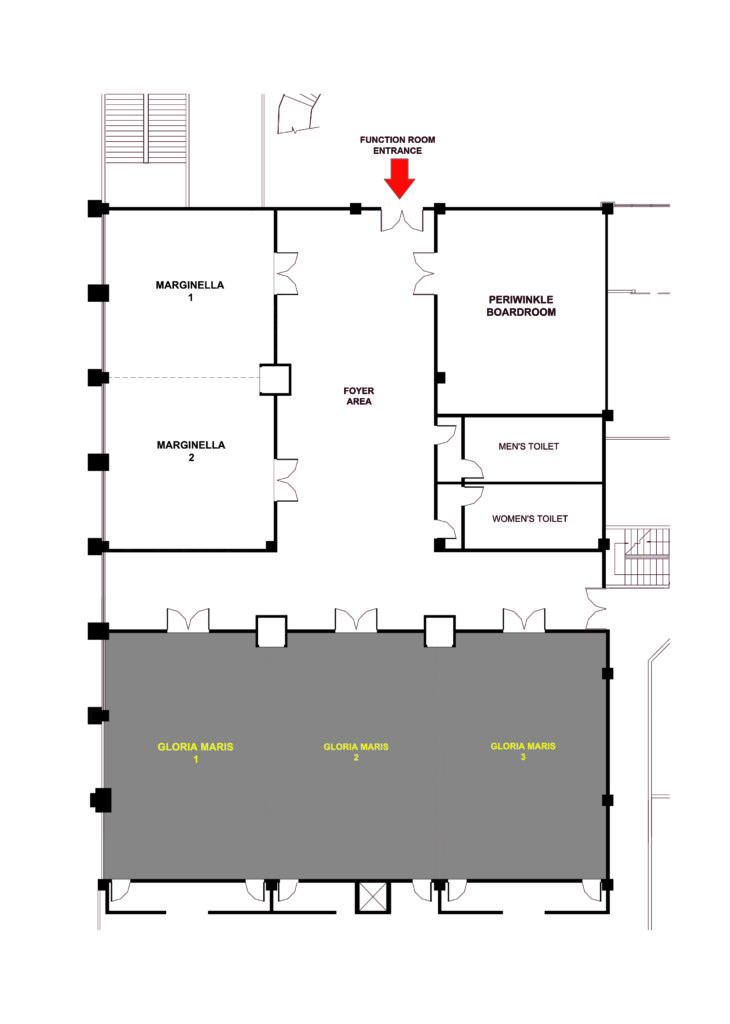
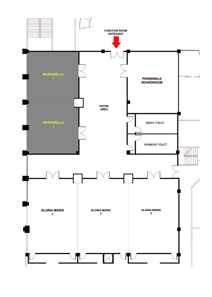
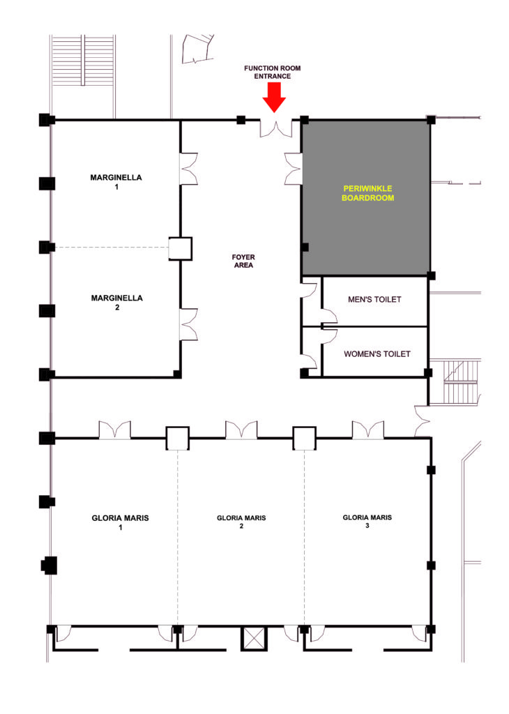
At Waterfront Insular Davao, we take pride in offering exceptional event venues. Our five function rooms and one boardroom provide a perfect setting for your upcoming event. With a seating capacity of up to 200 guests, our function rooms have a flexible floor plan that can be customized according to your vision.
Our experienced conventions and events team is always ready to help make your event a success.
For inquiries regarding our convention facilities and packages, please get in touch with our Conventions and Events Office at (0998) 594 8591 or 233 2881 loc. 2306.





